en

TODI - SAN DAMIANO: CARATTERISTICO CASALE IN PIETRA PERSONALIZZABILE

TodiSan Damiano - Rustico/Casale in vendita
690.000 €
Caratteristiche principali
460 m²
Superficie
7
Locali
3
Camere
1
Box auto
Descrizione
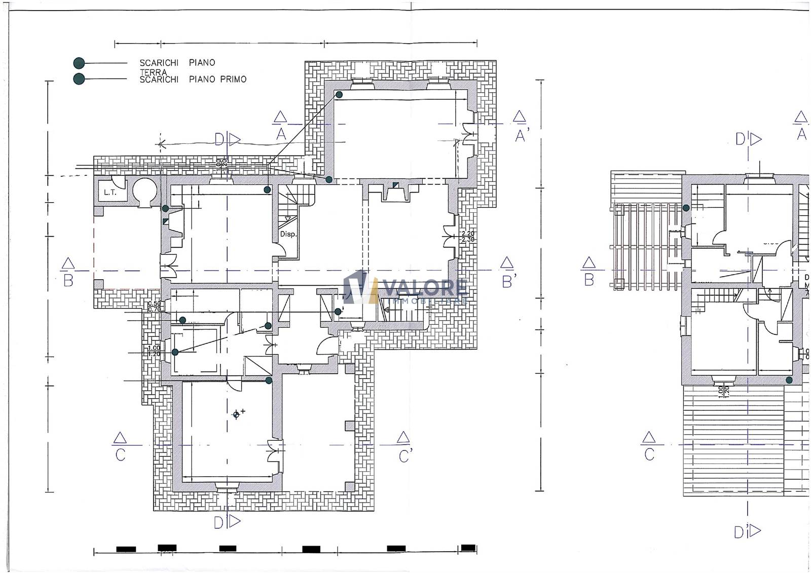
In posizione dominante e panoramica, a pochi minuti dal Centro Storico di Todi, proponiamo in vendita un casale in pietra faccia vista di nuova costruzione, con una superficie di circa 460 mq distribuiti su due livelli.
Dal porticato di circa 24 mq al piano terra si accede alla zona giorno, predisposta per un’ampia cucina abitabile ed un luminoso salone con zona pranzo e camino.
Sullo stesso livello inoltre è possibile realizzare un’esclusiva area benessere con palestra, spa, sauna, bagno turco e vasca idromassaggio.
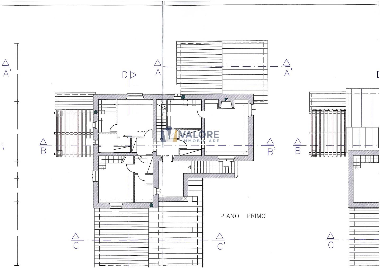
Il piano primo ospita la zona notte, che da progetto si suddivide in tre spaziose camere matrimoniali con bagno privato en suite ed un caratteristico soppalco.
Attualmente l’immobile si trova allo stato grezzo avanzato, offrendo all’acquirente la completa personalizzazione di finiture e suddivisione degli spazi interni secondo il proprio stile e le proprie esigenze.
A completare la proprietà, un garage di circa 33 mq situato al piano terra ed un terreno di circa 7.000 mq che circonda il casale, ideale anche per realizzare una piscina.
La proprietà si distingue per la sua posizione strategica, immersa nel verde della campagna umbra, tra vigneti e oliveti, ma al tempo stesso comodamente collegata al centro di Todi e ai principali servizi.
Per maggiori informazioni contattaci al 3470539216 o al 3421429635
Caratteristiche
Codice:
VA331
Città:
Todi (San Damiano )
Categoria:
Rustico/Casale
Locali:
7
Camere:
3
Mq:
460
Box auto:
1
Mq Box:
33
Mq Giardino:
7000
Piano:
Terra
Anno:
2025
Classe energetica:
A+
Stato Immobile:
Nuovo
Grado:
Signorile
Posizione:
Campagna
Panorama:
Vista Aperta
Orientamento:
Nord Ovest Sud Est
Lati Liberi:
4
Giardino:
Privato
Arredi:
Non Arredato
Tipo Soggiorno:
Salone
Tipo Cucina:
Abitabile
Infissi:
Personalizzato
Serramenti:
Personalizzato
Persiana:
Personalizzato
Pavim. Giorno:
Personalizzato
Pavim. Notte:
Personalizzato
Pavim. Cucina:
Personalizzato
Pavim. Bagno:
Personalizzato
Planimetrie
Video
Mappa
Loc. San Damiano - Todi (PG)
Richiedi informazioni

CONTATTACI

Cookie preference